Click to reach us online

TLD 48 Type DC Contactor

Main features of the range
The new range of LOGO series type TLD 48 contactors, which are very powerful, has been designed in accordance with the safety requirements as set out in the EUROPEAN DIRECTIVE 2006/42/CE as well as with Norms CEI EN 60947-4-1 and EN 1175-1.
The products included in the range are suitable for the traction and material handling sectors using direct current and can be applied to lift trucks, industrial cleaning machines, various services on board ships and boats as well as to road and rail transport vehicles

Coils
The d.c.coils feature terminals with 6mm double connections.
Standard duty is in intermittent mode (50%).
Maximum working time is 15 mins (temporary duty).
Normalised voltages: 12 - 24 - 36 - 48 - 72 - 80 - 96V.
The following are available: reduced consumption coils for continuous duty-option P.

Main contacts
These contactors have double breaking contacts, in Ag special alloy, resistant to arc and suitable for heavy duty.
The contacts are also available as spare parts. Further options Option M - magnetic blowouts TL40M contactors featuring permanent magnets are recommended
for voltages ≥48V dc. In this case the polarities indicated on the cover must be respected. 

Option V - dust protection
Closed contact housings can be applied to protect the contactor from oil splashes and dust.
This option can not be used on contactor types with permanent magnets.

Recommended working positions: either horizontal or vertical with poles pointing upwards

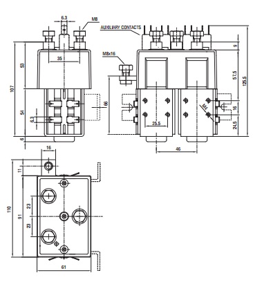
TLD 48 Type DC Contactor

Main Features
The COMBI type TLD48 motor reversers includes two single pole contactors with 1NO 1NC contacts and internal electrical connections.
The result is a compact product featuring IP50 protection degree, spade connections and terminals excluding.
Standard duty is in intermittent mode (50%) with a maximum working time of 15 minutes (temporary service).
The NC contacts are not suitable for making or breaking current.
The TLD48 COMBI motor reverser is available in versions with:
– 50% intermittent duty
– application of magnetic blowout (option M)
– application of dust protection (option V)
– application of two auxiliary contacts (option A)

Correct use of the motor reverser
The used contactors have fast drop-out times (10 msec) and relatively
long pull-in times (approx.30 msec).
In this way, safe reversals can be carried out without the risk of
the contacts being closed at the same time.
The use of suppressor diodes, however, increases drop-out times,
and therefore it is important to choose the most suitable type of
suppressor (diode+resistor).

Type and Codes
TLD48     50% int. duty E TLD48
TLD48     50% int. duty and magnets E TLD48M