LOGO Serisi - TL40
LOGO serisi TL 40 kontaktör ürün grubu, kuvvetliliği ile EUROPEAN DIRECTIVE CEE 89/392 emniyet gereksinimlerine ve CEI EN 60947-4-1 ve EN 1175-1 normlarına uygun bir biçimde tasarlanmışlardır. Bu ürün grubundaki ürünler direkt akım kullanarak malzeme çekilmesi ve malzeme taşınması işleri için ve forkliftlere, endüstriyel temizlik makinelerine, gemilerde ve botlardaki değişik servislerde aynı zamanda karayolu ve demiryolu araçlarında da kullanıma uygundur.
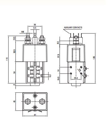
LOGO Serisi tek kutuplu kontaktör serisi TL 40, aşağıda verilmiş olan çeşitli opsiyonlarda ve farklı gerilimlerde temin edilebilir.
- %50 Kesintili Mod ( Standart )
- %100 Sürekli Mod Bobini ( Opsiyon P )
- Manyetik Söndürme ( Magnet ) ( Opsiyon M )
- Toz Koruması ( Opsiyon V )
- Yardımcı Kontak ( Opsiyon A )
Yardımcı kontak talep edileceği zaman kontaktör sipariş kodunun sonuna " A " eklenir.
Raviolispa TL40 Tip DC Kontaktör Teknik Özellikleri
|
Kontaktör Serisi
|
TL 40
|
TL 40M
|
TL 40P
|
|
%50 Kesintili Mod Nominal Çalışma Akımı, 300op/h
|
Ie
|
220A
|
220A
|
220A
|
|
Kesintisiz Modda Termal Akım Değeri
|
Ith
|
150A
|
150A
|
150A
|
|
Nominal Gerilim
|
Ue
|
24V
|
48V
|
24V
|
|
15ms zaman sabitli kesme kapasitesi
|
1000A
|
1000A
|
1000A
|
|
Kullanım Kategorisi
|
DC5
|
DC5
|
DC5
|
|
Çalışma Gerilim Limitleri
|
0,7-1,1Vn
|
0,7-1,1Vn
|
0,8-1,1Vn
|
|
Bobin Güç Kayıpları
|
35W
|
35W
|
35W
|
|
Tatbik Süreleri
|
Çekme Süresi
|
<30ms
|
<30ms
|
<30ms
|
|
Bırakma Süresi
|
<10ms
|
<10ms
|
<10ms
|
|
Terminal Tablosunda ki Maksimum Tork
|
60 Kgcm
|
60 Kgcm
|
60 Kgcm
|
|
Mekanik Ömrü
|
3 Milyon
|
3 Milyon
|
3 Milyon
|
|
Kontak Materyali
|
AgCdO
|
AgCdO
|
AgCdO
|
|
Ana Kontaklar
|
1NO
|
1NO
|
1NO
|